Aller à :

  • Aller à la recherche
  • Aller au menu principal
  • Aller au contenu
0
  • ACHETER
  • Louer
  • VENDRE
  • Immo pro
  • GESTION LOCATIVE
  • NOTRE ÉQUIPE
  • Contact
0
  • Acheter De l'ancien
  • Louer
Créez votre alerte e-mail
Dans un rayon de
Budget
Mini €
Maxi €

    Faites estimer votre bien par un professionnel

    Estimer votre bien
    1. Agence immobilière Lille
    2. Vente
    3. Lambersart
    4. Loft
    5. T5
    6. Loft 155 m2 lambersart

    LOFT - 155 m2 - LAMBERSART Lambersart (59130)

    Réf : 2
    Vendu

    Présentation

    Lambersart – Quartier Bourg

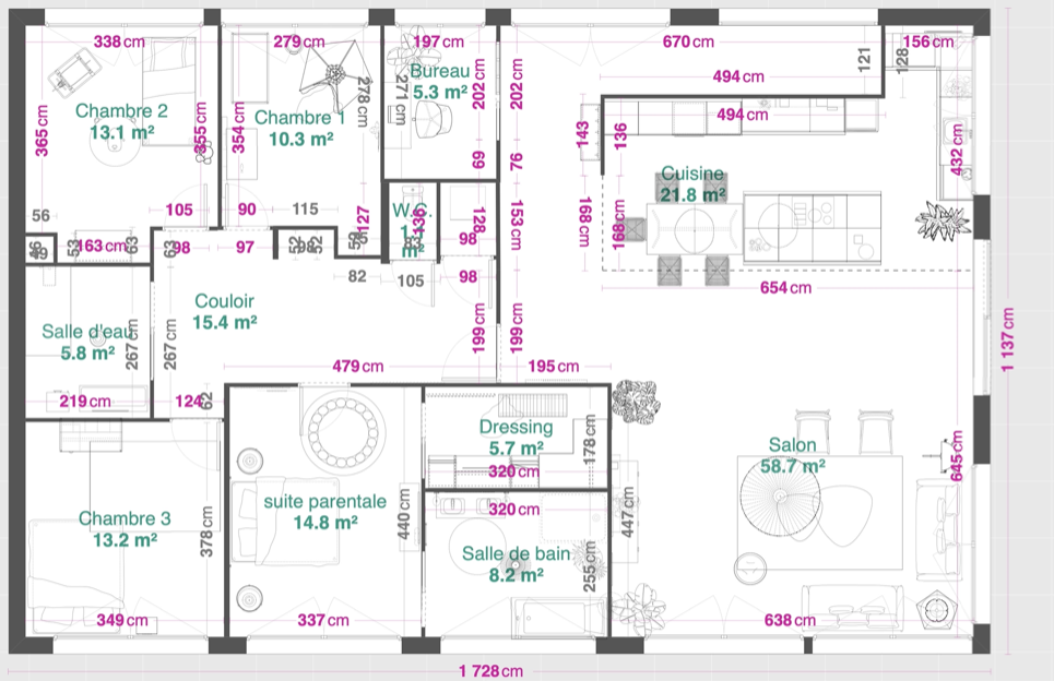
    Situé dans le quartier prisé du Bourg, ce loft de 155 m² séduit par sa belle luminosité et son calme, au sein d’une petite copropriété de trois lots.

    Il dispose d’une entrée indépendante menant à un vaste séjour de près de 59 m², prolongé par une cuisine ouverte de 22 m², aménagée et entièrement équipée. L’espace de vie est complété par un bureau, trois chambres avec chacune leur salle de douche, ainsi qu’une suite parentale comprenant une salle de bains et un dressing. Un balcon agréable permet de profiter d’un extérieur en toute tranquillité, et une place de parking peut être acquise en supplément pour plus de confort.

    L’appartement bénéficie d’un emplacement recherché dans un quartier résidentiel de Lambersart, conjuguant praticité et qualité de vie.

    Le bien est proposé au prix de 569 000 €, dont 27 250 € d’honoraires à la charge de l’acquéreur. La copropriété se compose de trois lots, sans procédure en cours, avec des charges mensuelles provisoires de 140 €. Le DPE est classé C.

    Les informations sur les risques auxquels ce bien est exposé sont disponibles sur le site www.georisques.gouv.fr.

    Les infos
    essentielles

    Caractérisque Valeurs
    Code postal 59130
    Surface habitable (m²) 155 m²
    Surface loi Carrez (m²) 155 m²
    Nombre de chambre(s) 4
    Nombre de pièces 5
    Etage 1

    Les + du bien

    Détails +

    Caractérisque Valeurs
    Nb de salle de bains 2
    Cuisine Américaine
    Type de cuisine Equipée
    Mode de chauffage Autre
    Type de chauffage Autre
    Format de chauffage Individuel
    Balcon OUI
    Terrasse NON
    Année de construction 1948
    Quartier BOURG

    DPE

    DPE GES

    Copropriété

    Caractérisque Valeurs
    Copropriété OUI
    Lot n° 3
    Quote Part annuelle des charges 1 680 €
    Nos outils
    Imprimer Imprimer
    Partager le bien
    Calculatrice financière

    * Champ obligatoire

    Partager l'annonce

    * champs obligatoires

    Les informations recueillies sur ce formulaire sont enregistrées dans un fichier informatisé par La Boite Immo agissant comme Sous-traitant du traitement pour la gestion de la clientèle/prospects de l'Agence / du Réseau qui reste Responsable du Traitement de vos Données personnelles. La base légale du traitement repose sur l'intérêt légitime de l'Agence / du Réseau. Elles sont conservées jusqu'à demande de suppression et sont destinées à l'Agence / au Réseau. Conformément à la loi « informatique et libertés », vous disposez des droits d’accès, de rectification, d’effacement, d’opposition, de limitation et de portabilité de vos données. Vous pouvez retirer votre consentement à tout moment en contactant directement l’Agence / Le Réseau. Consultez le site https://cnil.fr/fr pour plus d’informations sur vos droits. Si vous estimez, après avoir contacté l'Agence / le Réseau, que vos droits « Informatique et Libertés » ne sont pas respectés, vous pouvez adresser une réclamation à la CNIL. Nous vous informons de l’existence de la liste d'opposition au démarchage téléphonique « Bloctel », sur laquelle vous pouvez vous inscrire ici : https://www.bloctel.gouv.fr Dans le cadre de la protection des Données personnelles, nous vous invitons à ne pas inscrire de Données sensibles dans le champ de saisie libre.
    Ce site est protégé par reCAPTCHA, les Politiques de Confidentialité et les Conditions d'Utilisation de Google s'appliquent.

    Partager avec vos proches

    Facebook Facebook
    Messenger Messenger
    Twitter Twitter
    WhatsApp WhatsApp
    LinkedIn LinkedIn
    Copier le lien Copier le lien
    Détail des diagnostics énergétiques
    DPE GES

    Montant estimé des dépenses annuelles d'énergie de ce logement pour un usage standard est compris entre 1 620 € et 2 230 € . 2000 étant l'année de référence des prix de l'énergie utilisés pour établir cette estimation.

    Contacter
    l'agence

    Remplissez ce formulaire, nous ferons de notre mieux pour vous répondre dans les meilleurs délais.

    nom
    03 20 39 28 35
    E-mail contact@collet-immobilier.com

    2 rue des Manneliers,
    Lille 59800

    TRAD_MELTEM_voscoordonnees
    TRAD_MELTEM_voredemande
    Règlementation

    * Champ obligatoire

    Les informations recueillies sur ce formulaire sont enregistrées dans un fichier informatisé par La Boite Immo agissant comme Sous-traitant du traitement pour la gestion de la clientèle/prospects de l'Agence / du Réseau qui reste Responsable du Traitement de vos Données personnelles. La base légale du traitement repose sur l'intérêt légitime de l'Agence / du Réseau. Elles sont conservées jusqu'à demande de suppression et sont destinées à l'Agence / au Réseau. Conformément à la loi « informatique et libertés », vous disposez des droits d’accès, de rectification, d’effacement, d’opposition, de limitation et de portabilité de vos données. Vous pouvez retirer votre consentement à tout moment en contactant directement l’Agence / Le Réseau. Consultez le site https://cnil.fr/fr pour plus d’informations sur vos droits. Si vous estimez, après avoir contacté l'Agence / le Réseau, que vos droits « Informatique et Libertés » ne sont pas respectés, vous pouvez adresser une réclamation à la CNIL. Nous vous informons de l’existence de la liste d'opposition au démarchage téléphonique « Bloctel », sur laquelle vous pouvez vous inscrire ici : https://www.bloctel.gouv.fr Dans le cadre de la protection des Données personnelles, nous vous invitons à ne pas inscrire de Données sensibles dans le champ de saisie libre.
    Ce site est protégé par reCAPTCHA, les Politiques de Confidentialité et les Conditions d'Utilisation de Google s'appliquent.

    Page d'accueil
    Notre blog
    Adhérents

    © 2026 | Tous droits réservés | Traduction powered by Google |

    • Nos honoraires
    • Plan du site
    • Mentions légales
    • Admin
    • Nos liens
    • Politique RGPD
    • LinkedIn

    Comme beaucoup, notre site utilise les cookies

    On aimerait vous accompagner pendant votre visite. En poursuivant, vous acceptez l'utilisation des cookies par ce site, afin de vous proposer des contenus adaptés et réaliser des statistiques !

    Paramétrer

    Statistiques de visites

    Pour améliorer votre expérience, on a besoin de savoir ce qui vous intéresse !
    Les données récoltées sont anonymisées.

    ?

    Google Analytics

    requis
    ?

    Google Tag Mananger

    requis
    En savoir plus
    • Acheter De l'ancien
    • Louer
    Créez votre alerte e-mail
    Dans un rayon de
      Budget
      Mini €
      Maxi €
      Surface
      Mini m²
      Maxi m²

      Particularites

      Afficher les biens

      Faites estimer votre bien par un professionnel

      Estimer votre bien